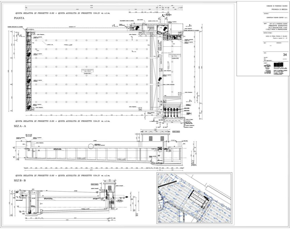
Out Let Franciacorta in comune di Rodengo Saiano (BS) – I° Lotto sistemi a rete e vasca volano di 5.000 mc
Committente European Fashion Center, P.zza Cascina Moie, 1/2 – 25050 Rodengo Saiano (Bs)
Progetto preliminare ed esecutivo I° Lotto delle reti fognarie di un nuovo centro commerciale I lavori consistono in:
- n° 1 vasca volano di circa 5.000 mc;
- reti acque piovane per una superficie di 15 ha;
- reti acque nere interne;
- reti di drenaggio della rete viabilistica e svincoli super stradali;
- impianto di depurazione del centro di Rodengo Saiano.
PROGETTO PRELIMINARE ED ESECUTIVO
PERIODO: Anno 2000 (collaudati aprile 2005)






